
В процессе обсуждения проекта сразу возникла идея обустроить второй этаж, предназначенный для спальни и небольшого гардероба, благо высота потолков позволяла без помех воплотить это решение.
Квартира в старом доме Санкт-Петербурга претерпела невероятное превращение – из нежилого помещения неправильной формы она превратилась в уютное и комфортабельное жилище благодаря усилиям команды архитекторов и дизайнеров.
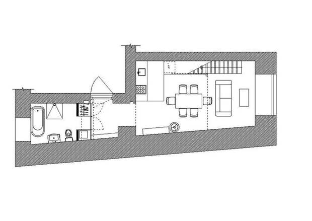
Площадь квартиры 40 квадратных метров, однако в результате перепланировки мы увеличили площадь до 53 квадратных метров.
Перепланировка
Изначально это помещение было даже не квартирой, а заброшенным помещением без санузла. Высота потолков в этом старом доме на Крюковом канале около 3 метров, а поскольку наше помещение было нежилым, высота оказалась нестандартной – 4,7 метра. Именно это позволило возвести второй этаж, где разместились спальня и небольшой санузел.




Пожелания заказчика
Так как квартира предназначалась для сдачи, заказчик просто хотел из помещения с высокими потолками сделать жилую квартиру, то есть максимально задействовать все возможности пространства.
Идея обустроить второй этаж в момент обсуждения проекта возникла сама собой как наиболее очевидная. Заказчик, так же как и мы, любит натуральные материалы, но каких-то еще определенных требований не было.
Стиль
Какому-либо конкретному стилю мы предпочтения не отдавали. Главным критерием было создать максимально функциональное и уютное жилище. Для второго этажа выделено лишь столько места, сколько было необходимо для установки кровати. Поэтому зона гостиной получилась особенно светлой благодаря огромным окнам и высоким потолкам.
Мы также наполнили дом предметами, каждый из которых мог бы рассказать отдельную историю. Так что в результате получилась некая современная эклектика.




Цвет и свет
Работать со светом было особенно интересно. Для освещения такого высокого помещения мы спроектировали люстру. При такой планировке точечной подсветкой не обойдешься. Освещение на втором этаже представлено в виде напольных фонариков, большие лампы которых перекликаются с люстрой.
Уединенную обстановку создают бра со свечами, свет которых отражается в зеркальных тарелках восьмиугольной формы, преломляющих этот свет под разными углами. Мы не делали какой-либо ставки на цвет – напротив выбрали спокойный монохромный цвет стен и текстиля. Он выгодно подчеркивает натуральные оттенки дерева и старой кирпичной кладки. Цветовые акценты аккуратно расставлены с помощью живописных полотен и небольшого количества ярких подушек.
Предметы старины и винтаж
Мы уважаем старину и надеемся, что сумели показать свое отношение в своих работах. В данном интерьере мы не стали заштукатуривать старую кирпичную кладку – ее рисунок хорошо читается в оконных проемах. Сняв старую штукатурку с потолков, мы обнаружили балки. Их почистили и оставили как есть. Местами даже торчит береста.
В интерьере нашлось место для старинных вещей: сундук, чемоданы – все эти предметы придают ему характер "дома с историей".


Мебель
В деле подбора мебели и предметов обстановки с нами был оговорен минимальный бюджет, в который нужно было вписаться. Подбор мебели, проектировка лестницы, свет – все это происходило без заказчика, но по согласованию.
Для этого интерьера мы спроектировали конструкцию второго этажа с лестницей и перилами. За деревянными фасадами, расположенными под небольшим углом, спрятан гардеробный шкаф и небольшой санузел. Кухонная стойка также была создана по нашим эскизам.
Кроме проектирования двухэтажной конструкции и кухни по нашим эскизам также были сделаны некоторые предметы этого интерьера.
Тумбочку под телевизором (в ней хранятся диски) переделали сами из старого чемодана. Центральную люстру заказали на Северном заводе. Ее собрали из химических колб.


Чем вы гордитесь?
Предмет гордости – это, конечно, слишком громко звучит. Нам просто удались какие-то решения, и мы этому рады. К удачным решениям мы относим второй этаж со шкафами и потайным санузлом, люстру и лестницу.

Свежие комментарии